Показать телефон
Срок сдачи: ОБЪЕКТ СДАН
Этажность: 1-2 этажа
Район: Краснодар
Адрес: хутор Ленина
Материал стен: Кирпич
Отделка стен: Под ключ / Предчистовая / Черновая
Парковка: Придомовая
Окна: МПО
Сантехника: Центральное водоснабжение, Канализация-септик, Газ-котел
Цены и метраж
| Дом | от 64 до 600 м2 | от 2 600 000 до 20 000 000 руб. |
| Дуплекс | от 90 до 190 м2 | от 2 700 000 до 4 500 000 руб. |
ИПОТЕКА, РАССРОЧКА, МАТЕРИНСКИЙ КАПИТАЛ


Описание проекта
Коттеджный поселок «Виктория» представляет из себя комплексную застройку из 1-2-этажных кирпичных домов, коттеджей и дуплексов комфорт-класса.
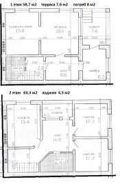
Характеристики домов
На выбор покупателям представлены одно- и двухэтажные дома площадью от 62 до 234 кв. м. — всего более 250 различных проектов:
- коттеджи разной площади — каждый на одного хозяина;
- дуплексы — один дом на двух хозяев;
- квадрахаусы — один большой дом на четыре семьи.
В некоторых планировках предусмотрены просторные террасы. К каждому дому прилагается земельный участок, площадь которого в различных вариантах заметно варьируется. «Виктория» находится на территории Карасунского внутригородского округа, поэтому полностью подключена к централизованным системам водоснабжения (из артезианской скважины) и отопления. В поселок проведен сетевой газ, есть септическая канализация, а также возможность подключить телефон и интернет.
Жилье , как сообщается на официальном сайте коттеджного поселка, сдается с предчистовой отделкой, в нее включены:
- стяжка пола,
- гипсовая штукатурка,
- разводка электричества по всему дому,
- стальные радиаторы отопления (горизонтальная разводка),
- выводы под коммуникации,
- двухконтурный котел на гор. воду и отопление,
- окна ПВХ,
- входная металлическая дверь,
- бетонная отмостка по периметру дома,
- установка забора с фасадом из кирпича и вставками из металлопрофиля.
Дома строятся по договору генерального подряда, в дополнение можно заказать установку навесов и строительство беседки на территории, оформление зеленой зоны.
Территория поселка охраняемая, благоустроенная, с детскими и спортивными площадками, прогулочными аллеями, зонами отдыха.
Территория поселка охраняемая, благоустроенная, с детскими и спортивными площадками, прогулочными аллеями, зонами отдыха.
Инфраструктура
Рядом с КП "Виктория" находятся детские сады, школы, спортивные площадки, банки, тренажерный зал, салоны красоты. На берегу Краснодарского водохранилища собственный пляж! Остановки общественного транспорта в шаговой доступности от КП «Виктория». Проходят маршрутные такси и автобусы. В 10 минутах езды на автомобилей или общественном транспорте – крупнейшие мегамоллы – ТРЦ «OZ MOLL», «СБС Мегамол» с торговыми галереями, кинотеатрами, детскими развлекательными центрами, кафе и ресторанами.
КП «Виктория» предлагает жилье для людей, которые выбирают комфорт и простор для своей семьи. Покупая дом, коттедж или дуплекс в КП «Виктория», вы получаете соседей, которые разделяют ваши ценности. Здесь сложилась атмосфера уважения и доброжелательности.
Дома в КП «Виктория» сданы и готовы к новоселью! При этом цены на жилье – очень привлекательные!
Купить жилье в КП «Виктория» можно за наличный и безналичный расчет, в ипотеку, в рассрочку, с помощью материнского капитала.
- На карте
- Панорама
Инфраструктура
























