Показать телефон
Срок сдачи: ОБЪЕКТ СДАН
Этажность: 1-2 этажа
Район: Краснодар
Адрес: поселок Российский
Материал стен: Монолит-кирпич
Отделка стен: Стяжка-штукатурка
Парковка: Придомовая
Окна: МПО
Сантехника: Центральная канализация, Водоснабжение центральное, Газ-котел
Цены и метраж
| Таунхаус | от 90 до 120 м2 | от 3 000 000 до 3 600 000 руб. |
| Дом | от 106 до 140 м2 | от 4 000 000 до 5 100 000 руб. |
| Дуплекс | от 120 до 133 м2 | от 3 600 000 до 4 000 000 руб. |
ИПОТЕКА:



Описание проекта
Коттеджный поселок «Вилла Роз» расположился в Прикубанском округе Краснодара, который славится своей экологичностью и развитой инфраструктурой. На территории в 9, 2 га выстроены уютные дуплексы, коттеджи и таунхаусы, есть прогулочные аллеи, парки, детские площадки и даже небольшой фонтан.
Свое название «Вилла Роз» оправдывает на 100% - здесь есть много клумб и цветников. Еще на территории высадили множество деревьев – воздух стал значительно чище, а пыли поубавилось.
Виды домов.
Начинался проект как поселок таунхаусов - домов с собственным входом и участком, но соединенные друг с другом несущими стенами. Затем застройщик решил добавить еще несколько вариантов жилья – так в КП «Вилла Роз» стали возводить отдельно стоящие коттеджи и дуплекса (дом на две семьи).
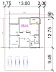
Двухэтажные таунхаусы строятся и сдаются секциями, в одной секции – пять «квартир». Есть различные планировки площадью в 90, 100, 110 и 120 квадратов. В каждом предусмотрены минимум три комнаты, два санузла ( на каждом этаже), просторная кухня, кладовки и холл. Возле дома расположена зона барбекю, парковка и облагороженный внутренний дворик с удобными воротами системы «ролллер».
Дуплексы представлены двумя вариантами – в 120 и 133 кв.м. Это двухэтажные дома. где минимум четыре комнаты, два санузла, просторная кухня, дворик и парковка на отдельном участке в 2 сотки земли.
Дома – от 105 до 140, 5 кв.м .Два этажа, четыре ли пять комнат. Во всех типовых планировках предусмотрены крытые и открытые балконы, террасы, французские окна, минимум два санузла, просторный холл, кухня и множество комнат для хранения – кладовых и гардеробных. Внутренний дворик и парковка перед домом, к каждому коттеджу прилагается земельный участок в 3 сотки.
Материал строительства и отделки.
Все дома класса «комфорт плюс» в «Вилле Роз» возводят по монолитно-кирпичной технологии на ленточном фундаменте. Высота потолков во всех строениях – три метра. Стены строят из кирпича, перегородки – из красного керамического кирпича. Снаружи фасады украшает декоративный облицовочный кирпич, оконные рамы из металлопластика стилизованы под темное дерево, открытые балконы также украшены вставками из темной древесины. Крыша в большинстве домов двухскатная и из качественной черепицы.
Все жилье в «Вилле Роз» застройщик сдает с предчистовой отделкой, которая включает:
- выравнивание и шпатлевку стен,
- укладку стяжки на полу,
- установку окон и дверей,
- полную разводку под коммуникации и сантехнику,
- установку металлических радиаторов.
Водопровод и электричество, канализация, газ – централизованные, отопление с помощью сетевого газа, в домах также установлены двухконтурные нагревательные котлы. Придомовые участки выложены тротуарной плиткой, дома сдаются вместе с заборами и воротами.
Инфраструктура поселка "Вилла Роз" является одной из самых быстро развивающихся в Краснодаре. Вблизи коттеджного поселка предусмотрено все необходимое: есть школа, детский садик, проводят троллейбусную линию по ул. Российская. В 10 минутах езды на автомобиле находится один из самых популярных торговых центров - Лента. Рядом остановка маршрутного такси. Для школьников специально выделен школьный автобус. Предусмотрены детская и спортивная площадки. Экологически чистый район, отсутствуют какие-либо производственные предприятия.
Основные преимущества покупки жилья в коттеджном поселке "Вилла Роз": новый развивающийся район с прекрасной экологией, таунхаусы, дома и дуплексы по приемлемым ценам и выполненные по уникальному проекту, отличное качество, собственная территория, рассрочка платежей, ипотека, в том числе и военная ипотека.
- На карте
- Панорама
Инфраструктура



















