Показать телефон
Срок сдачи: Поэтапно
Район: Краснодар
Адрес: Карасунский округ
Материал стен: Кирпич
Отделка стен: Предчистовая
Парковка: Придомовая
Окна: МПО
Сантехника: Центральное водоснабжение, Центральная канализация, Газ сетевой
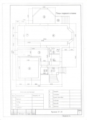
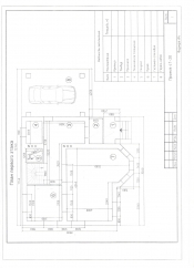
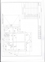
Цены и метраж
| Дом | 140 м2 | 5 250 000 руб. |
Подробная информация о ценах и планировках: +7 (861) 240-96-42
Описание проекта
Котеджный поселок "Гидрострой" - это двухэтажные коттеджи класса «бизнес». Дома возводятся из кирпича, используя высокотехнологичные материалы. Строительство ведется с соблюдением строительных регламентов.
На территории поселка есть спортивная и детская площадки. В шаговой доступности находятся все необходимые объекты инфраструктуры. Хорошее местоположение поселка, развивающийся район, транспортная доступность.
- На карте
- Панорама
Инфраструктура




















