Показать телефон
Срок сдачи: 3 квартал 2021 года
Этажность: 24 этажа
Район: Краснодар
Адрес: ул. Солнечная, 12А
Материал стен: Монолит-кирпич
Отделка стен: Предчистовая
Парковка: Подземная, Гостевая
Окна: МПО, остекление балконов и лоджий
Лифт: 2 и более лифтов в подъезде
Цены и метраж
| 1-к квартира | от 33.25 до 44.53 м2 | от 1 379 875 до 1 892 525 руб. |
| 2-к квартира | от 58.18 до 90.62 м2 | от 2 414 470 до 3 760 730 руб. |
| 3-к квартира | от 100.2 до 122.05 м2 | от 4 158 300 до 5 065 075 руб. |
| Пентхаус | от 75.83 до 157.15 м2 | от 3 184 860 до 6 600 300 руб. |
ИПОТЕКА:
Описание проекта
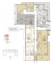
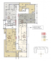
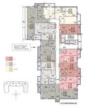
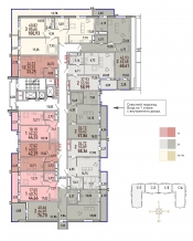
ЖК “Патриот” — это 24-этажный дом в форме буквы “П”. Строительство ведется по монолитно-кирпичной технологии с применением инновационных систем. Заявленная сейсмостойкость — 7 баллов. Комплекс относится к классу “комфорт”.
Планировки в новом доме рассчитаны на удовлетворение разных потребностей покупателей: будут предложены скромные студии, просторные 3-комнатные квартиры, 1-2-комнатные квартиры, рассчитанные на небольшую семью. Квартиры сдаются с предчистовой отделкой, включающей установку стеклопакетов, входной металлической двери, радиаторов, счетчиков воды и электроэнергии, разводку электрокабеля.
Возле дома запланирован паркинг. В каждом из четырех подъездов установят бесшумный скоростной лифт. Придомовая территория для безопасности жильцов будет огорожена. На ней разместятся спортивная и игровая площадки, гостевая стоянка.
Инфраструктура.
Для микрорайона ЗИП характерно удобное расположение рядом с центром города, до Красной улицы можно дойти пешком. В районе идет активное строительство, возводятся и новые инфраструктурные объекты.
- универсамы, торговые центры;
- детская поликлиника, железнодорожная больница, городская поликлиника;
- четыре муниципальных детских сада, частный сад;
- школа, техникум;
- три спортивных клуба, фитнес-центры.
Транспортное сообщение хорошо развито. Доехать в любой район города можно на автобусе, трамвае или маршрутке. Отсюда удобный выезд на основные магистрали — Ростовское шоссе и улицу Российскую.
Продажа квартир в ЖК "Патриот" ведется через наличный и безналичный расчет, по ипотеке, в рассрочку, с помощью материнского капитала.
- На карте
- Панорама
Инфраструктура




















