Дом, 160 кв. м, 2 этаж
Подаётся 2х этажный дом 160 м.кв.
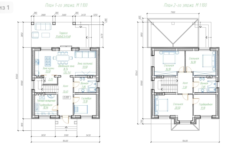
Продаётся 2-х этажный дом площадь 160 м.кв.+ 20 м.кв терраса
Земля ИЖС, нарезки от 5 соток.
Дом в предчистовой отделке, стяжка,штукатурка.
Первый этаж состоит:
Техническое помещение
Гостевая комната
Холл
Совмещенный санузел
Кухня-гостиная с выходом на крытую террасу.
Выполнена система тёплый пол.
Второй этаж состоит:
Три спальни+ кабинет.
Совмещённый санузел, тёплый пол.
Двор в плитке, на участке отсыпан чернозём.
Забор по всему периметру, электрические ворота.
Газ по меже с возможностью подключения, свет 15 кВт.
Рядом Немецкая Деревня.
Возле дома магазины остановка общественного транспорта.
В 15 минутах езды ТЦ Красная Площадь, до Ул. Красная 30 минут езды на авто.
Продаётся 2-х этажный дом площадь 160 м.кв.+ 20 м.кв терраса
Земля ИЖС, нарезки от 5 соток.
Дом в предчистовой отделке, стяжка,штукатурка.
Первый этаж состоит:
Техническое помещение
Гостевая комната
Холл
Совмещенный санузел
Кухня-гостиная с выходом на крытую террасу.
Выполнена система тёплый пол.
Второй этаж состоит:
Три спальни+ кабинет.
Совмещённый санузел, тёплый пол.
Двор в плитке, на участке отсыпан чернозём.
Забор по всему периметру, электрические ворота.
Газ по меже с возможностью подключения, свет 15 кВт.
Рядом Немецкая Деревня.
Возле дома магазины остановка общественного транспорта.
В 15 минутах езды ТЦ Красная Площадь, до Ул. Красная 30 минут езды на авто.
15 500 000
руб.
Тип:
Дом
Расположение:
Город:
Краснодар г
Количество комнат:
5
Этажность:
2
Площадь строения:
160m2
Площадь участка:
5.60 сот.
Материал стен:
Кирпичный
Ремонт:
Без ремонта
Подать заявку на ипотеку
Как к Вам обращаться?
Номер телефона
Марина
Показать телефон
- На карте
- Панорама
Инфраструктура
Похожие объявления
Показать еще объявления



















